HVAC Engineering Services in West Allis & Milwaukee, WI

At Done Right Air, we provide professional HVAC engineering services designed to create efficient, reliable, and customized heating, cooling, and ventilation systems for residential, commercial, and industrial projects. Whether it’s designing a system for new construction or optimizing an existing setup, our expertise ensures your HVAC solutions are built for performance and longevity.

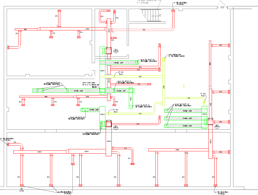
Detailed blueprint of an HVAC ductwork system, showcasing the layout and design for efficient air distribution and ventilation in a building

Our Engineering Services Include:

  1. System Design and Layout: Custom HVAC designs tailored to your building’s size, usage, and energy efficiency goals.

  2. Load Calculations: Precise heating and cooling load calculations to ensure optimal system performance.

  3. Ductwork Design: Efficient ductwork layouts to maximize airflow and reduce energy waste.

  4. Energy Optimization: Recommendations for energy-efficient equipment and system configurations.

  5. Troubleshooting and Redesign: Solutions for underperforming or outdated systems to improve functionality.

Why Choose Done Right Air for HVAC Engineering?

  • Expertise in Advanced HVAC Design: Our team brings years of experience in creating systems that meet the unique requirements of each project.

  • Customized Solutions: Every design is tailored to your specific needs, ensuring efficiency and comfort.

  • Focus on Energy Efficiency: We help reduce energy consumption and operational costs with smart engineering.

  • Collaborative Approach: We work closely with contractors, architects, and property owners to ensure seamless integration into your project.

Industries We Serve:

  • Residential Homes

  • Commercial Buildings

  • New Construction Projects

📞 Call us at (414) 888-6880 or contact us online to schedule your service.

More Services